Ce lot n’est plus disponible chez VIANOVA ou est vendu.

Vous pouvez revenir dans 24h pour vérifier le stock à jour ou contacter un conseiller Vianova pour vérifier le stock en direct.
Vous pouvez également continuer votre recherche sur notre site « ici ».

Prix
286 219€
Type
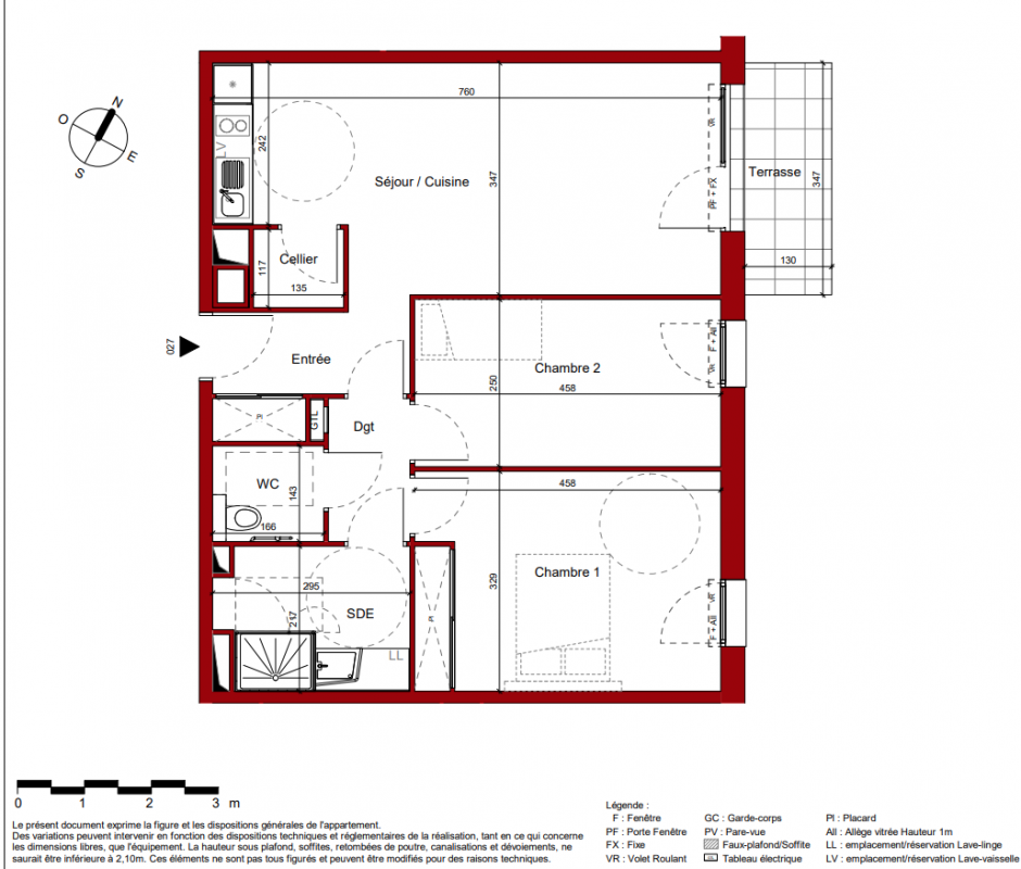
Appt. au 0-RDC
Pièces
T3
Surface
68 m²
Exposition
Est
Ville
Roubaix (59100)
Livraison
3ème trimestre 2026
Informations
01 81 80 39 10

Présentation du programme "L'ANGORA"

Optez pour l'investissement LMNP et ses nombreux avantages : revenus complémentaires non fiscalisés, récupération de la TVA, loyers garantis par un bail commercial, pérennité et sécurité de l'investissement grâce au gestionnaire de premier plan Domitys. La résidence services seniors L'ANGORA, idéalement située à proximité du Parc Barbieux et du centre hospitalier de Roubaix, propose des appartements du studio au 3 pièces. Un lieu de vie joyeux et accueillant où, en plus de logements confortables et adaptés, chacun peut profiter d'un panel de services : piscine, salle de soins et de massages, services à la carte -coiffure, blanchisserie, restauration Et pour parfaire le tout, une équipe est présente 7j/7. Une présence rassurante pour profiter pleinement de ce 3ème âge. Pour en savoir plus et bénéficier d'une étude patrimoniale gratuite, contactez-nous !

Autres logements T3 du programme "L'ANGORA"

Disponibilité Prix Genre Pièces Surface Étage
Voir
Disponible
252 379€ Appt. T3 60m2 0-RDC
Voir
Disponible
264 019€ Appt. T3 62m2 1er
DO NOT CLICK