212 500€
363 000€
1 331€
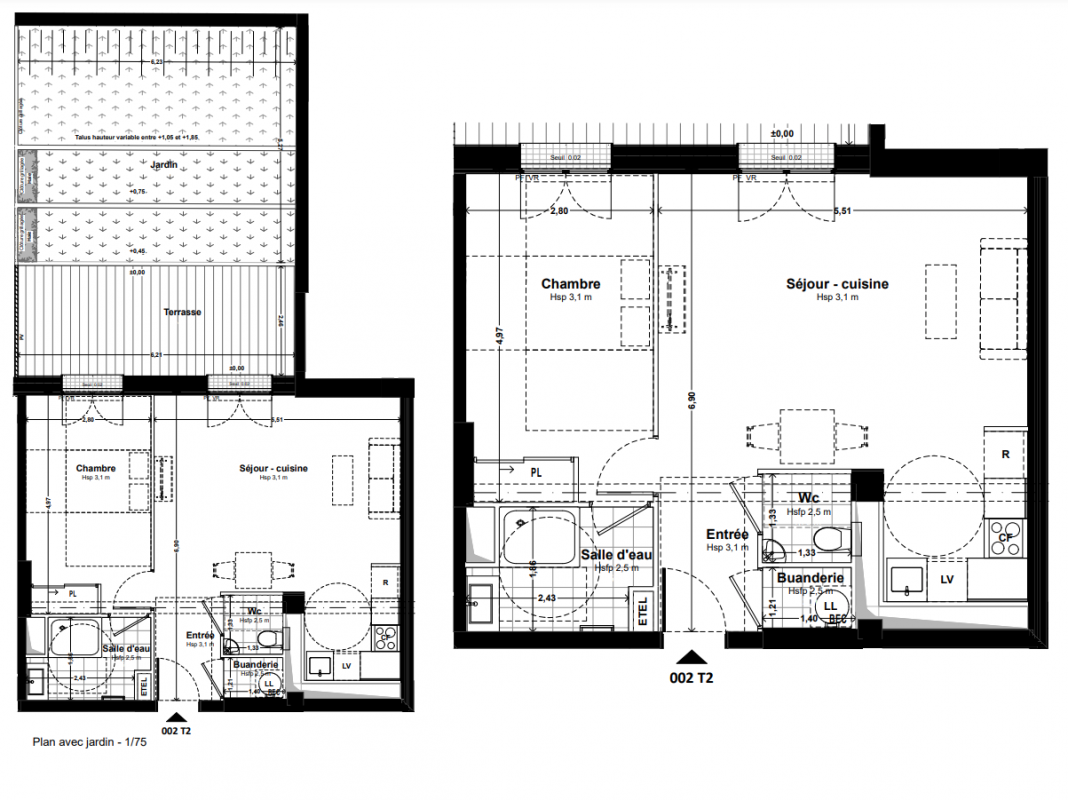
Type
Appt. au 0-RDC
Pièces
T2
Surface
52.7 m²
Exposition
-
Ville
Issy-les-Moulineaux (92130)
Livraison
2ème trimestre 2025
Informations
01 81 80 39 10

Présentation du programme "CARRE DES ARTS"

Autres logements T2 du programme "CARRE DES ARTS"

Disponibilité Prix Genre Pièces Surface Étage
Voir
Disponible
463 000€ Appt. T2 46.6m2 0-RDC
DO NOT CLICK