Prix
366 441€
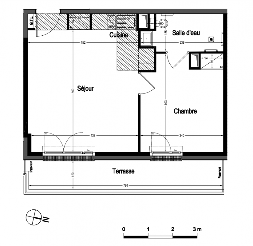
Type
Appt. au 3ème
Pièces
T2
Surface
43.25 m²
Exposition
-
Ville
Marnes-la-Coquette (92430)
Livraison
3ème trimestre 2023
Informations
01 81 80 39 10

Présentation du programme "Domaine Lafayette"

INVESTISSEZ DANS UNE RESIDENCE SENIORS A MARNES-LA-COQUETTE

Dans le cadre de la Location Meublée Non Professionnelle* (LMNP), profitez de revenus réguliers, de de la possibilité de récupérer la TVA** et d'une réduction d'impôts***.

Un havre de paix au cœur des Hauts-de-Seine

A seulement 12km**** de Paris, entre le Parc de Saint-Cloud, la forêt de Fausses-Reposes et le parc du haras de Jardy, Marnes-la-Coquette offre à ses habitants un cadre de vie paisible et exceptionnel. La commune veille à protéger ses 213 hectares de parcs et forêts et à proposer des activités de plein air comme le tennis, l’équitation ou le golf. Les séniors ne sont pas en reste grâce au club des ainés de Vaucresson qui propose rencontres, sorties, cours de gym, voyages et club de bridge.
Tous les commerces et services de proximité sont accessibles sur la ville ainsi que la gare de Vaucresson Marnes-La-Coquette qui permet de rejoindre Paris Saint-Lazare en 25 minutes****.

Le standing et le bien-être à Marnes-la-Coquette

Votre résidence neuve et livrée s’installe dans un environnement préservé entre parc et étang. Sur 3 étages, le Domaine Lafayette, à Marnes-La-Coquette, propose des appartements 2 et 3 pièces, meublés, équipés et « prêts à vivre », possédant tous un espace extérieur, balcon ou terrasse selon typologie ainsi qu'un stationnement en sous-sol pour les 3 pièces.

Au rez-de-chaussée, le grand salon et la salle de loisirs, orientés au sud, s’ouvrent sur une grande terrasse permettant un accès direct aux promenades aménagées autour de l’étang.
Les services sont adaptés à nos séniors, un encadrement compétent et permanant 7j/7 et 24h/24, de nombreuses activités (gymnastique douce, expositions, arts plastiques…), une conciergerie pour faciliter le quotidien et un restaurant privé avec des menus proposés par des chefs pour le midi et le soir.

Promoteur national et tout particulièrement présent en Île-de-France depuis plus de 25 ans, Vianova vous propose, en tant qu’expert de la promotion immobilière, la résidence Domaine Lafayette située à Marnes-la-Coquette.
N’hésitez pas à nous contacter pour votre projet d’investissement locatif en VEFA en Haut-de-Seine.

* Sous réserve des conditions fixées par  l’article 155, IV du Code Général des Impôts
** Sous réserve des conditions fixées par l’article 261 D, 4) du Code Général des Impôts
*** Dans les conditions et limites fixées par l’article 199 sexvicies du Code Général des Impôts
**** Source Google Maps

Autres logements T2 du programme "Domaine Lafayette"

Disponibilité Prix Genre Pièces Surface Étage
Voir
Disponible
357 572€ Appt. T2 42.17m2 1er
Voir
Disponible
366 552€ Appt. T2 41.11m2 3ème
DO NOT CLICK