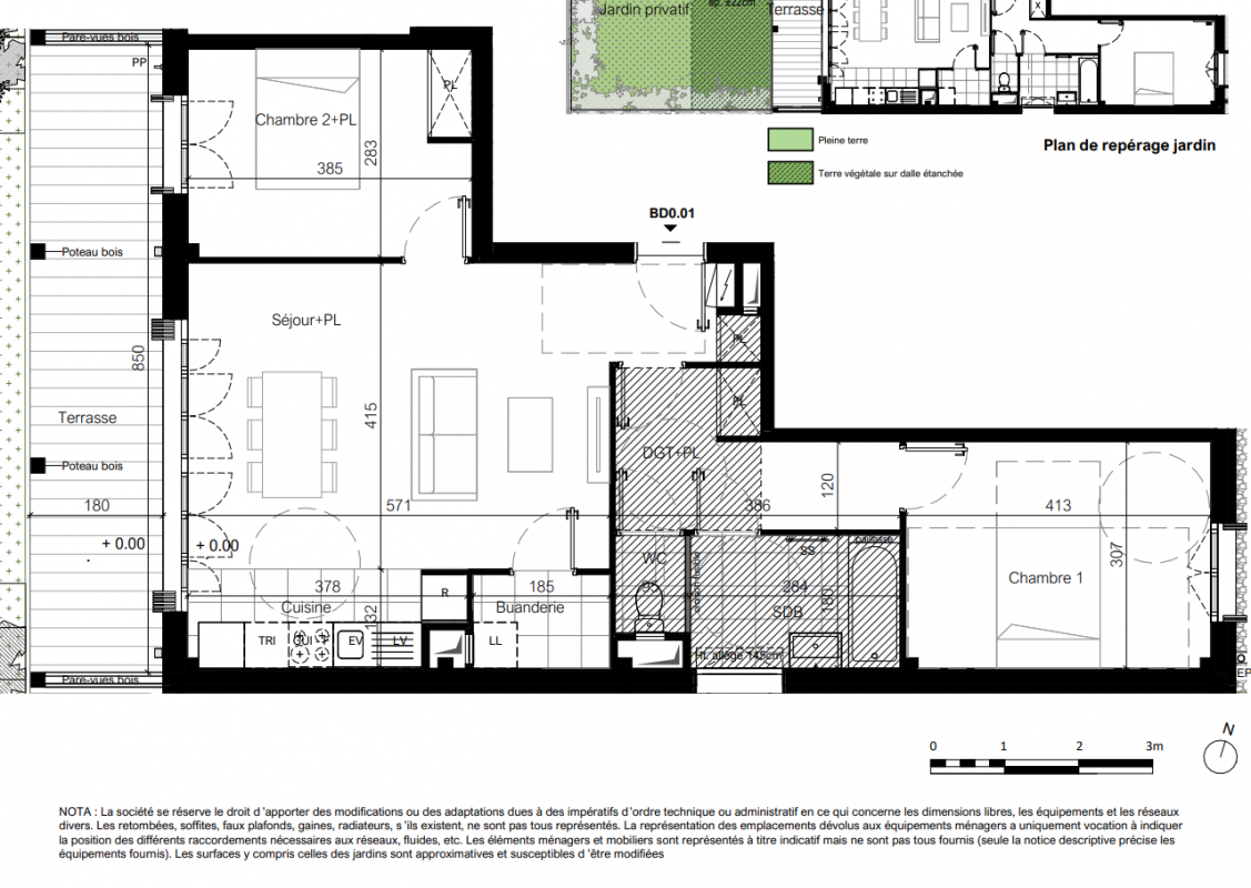
Appt. n°BD001

Programme "SEEKO"
Prix
344 900€
Type
Appt. au 0-RDC
Pièces
T3
Surface
69.37 m²
Le bon plan
Exposition
-
Ville
Bussy-Saint-Georges (77600)
Livraison
4ème trimestre 2026
Informations
01 81 80 39 10

Présentation du programme "SEEKO"

La résidence SEEKO profite d’une situation idéale, au calme dans une zone résidentielle qui fait la part belle aux espaces verts aménagés, tout en étant à proximité des écoles, commerces, services, transports en commun et bassins d’emplois.
Elle propose 73 logements : 66 appartements du T2 au T5, répartis en 4 bâtiments allant de R+2 à R+4 et 7 maisons individuelles T5 duplex. Tous offrent de beaux espaces de vie avec tout le confort moderne, spacieux et lumineux, donnant sur un extérieur, balcon, terrasse ou jardin.
En coeur d’îlot, les habitants pourront profiter d’un vaste espace paysager, doté d’un potager partagé, véritable lieu de rencontre et d’échange. Un parking en sous-sol et de nombreux locaux vélos viennent faciliter leur vie quotidienne.
De plus, la résidence est en partie construite avec des matériaux géosourcés, comme la brique en terre crue compressée (BTC), excellent isolant thermique et phonique, participant au développement durable. Elle est certifiée NF Habitat HQE “excellent”
et a obtenu les labels Effinature et IntAirieur, valorisant la faible consommation énergétique, la qualité de l’air à l’intérieur des logements et la biodiversité.

Autres logements T3 du programme "SEEKO"

Pas de logements disponibles
DO NOT CLICK