355 200€
Appt. au 0-RDC
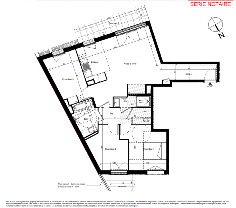
T4
83.05 m²
-
Roissy-en-Brie (77680)
2ème trimestre 2027
01 81 80 39 10
Présentation du programme "Synopsis"
[JUSQU'À 8 000€ DE REMISE + FRAIS DE NOTAIRE OFFERTS*]
TRAVAUX EN COURS
Découvrez la résidence Synopsis dans le CENTRE-VILLE de ROISSY-EN-BRIE (77). Appartements neufs du studio au 4 pièces familial. Surfaces extérieures (jardin, terrasse ou balcon) pour la majorité des logements. Prestations de qualité sélectionnées pour le bien-être des résidents : large gamme de carrelages et faïences murales, volets roulants, locaux vélos équipés, espace de coworking. Prix communiqués PARKING INCLUS (hors studios et certains 2 pièces). Résidence éligible PTZ et LMNP. Grâce au régime LMNP (Location Meublée Non Professionnelle), bénéficiez d'une fiscalité avantageuse pour votre investissement, plus d'informations auprès de nos conseillers.
Contactez nous pour prendre rendez-vous avec l'un de nos conseillers et profitez de nos offres exceptionnelles. Appel gratuit : 0800 800 874. Care Promotion : https://care-promotion.fr/Synopsis/

