Prix
279 900€  (TVA 20%)
246 079€  (TVA 5.5%)
Type
Appt. au 3ème
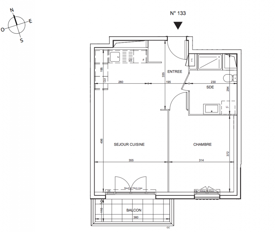
Pièces
T2
Surface
47.88 m²
Exposition
Sud
Ville
Aubervilliers (93300)
Livraison
4ème trimestre 2027
Informations
01 81 80 39 10

Présentation du programme "Programme neuf Aubervilliers (93300)"

NOUVEAU à AUBERVILLIERS ! Achetez votre appartement neuf du studio au 4 pièces avec extérieur et parking !Et en plus grâce à la TVA réduite* à 5,5%, devenez propriétaire pour le même prix que votre loyer !Aubervilliers s’impose comme une ville dynamique en plein renouveau. Profitant d'une proximité immédiate avec la capitale, elle offre un cadre de vie idéal grâce à ses nombreux équipements scolaires et commerces. La ville bénéficie également d’un excellent réseau de transports permettant de rejoindre rapidement les principaux pôles d'activité de la région parisienne.Située au cœur d’un environnement parfaitement connecté, notre nouvelle résidence bénéficie d’une accessibilité optimale. Le métro ligne 7 est accessible en 14 min* à pied, offrant une liaison directe vers Opéra. La gare RER B de La Courneuve – Aubervilliers, située à seulement 9 min* en transport, permet de rejoindre facilement le bassin d’emploi de la Plaine Stade de France ainsi que l’aéroport de Paris Charles-de-Gaulle, idéal pour les travailleurs. Au pied de la résidence, une ligne de bus assure des correspondances rapides avec l’ensemble de la ville et ses environs. Côté route, l’autoroute A3 permet de rejoindre le boulevard périphérique en 20 min*.Afin de faciliter le quotidien des familles et de permettre aux parents de suivre au mieux la scolarité de leurs enfants, une crèche, groupe scolaire ainsi qu'un lycée se trouve à seulement quelques minutes à pied.Pensée pour le bien-être de ses habitants, notre nouvelle résidence propose des appartements allant du studio au 4 pièces, tous prolongés par des espaces extérieurs. Un parking en sous-sol offre confort et sécurité à l’ensemble des résidents.Contactez dès maintenant un de nos conseillers pour choisir l'appartement neuf de vos rêves à Aubervilliers !

Autres logements T2 du programme "Programme neuf Aubervilliers (93300)"

Disponibilité Prix Genre Pièces Surface Étage
Voir
Optionné
268 500€ Appt. T2 47.7m2 1er
Voir
Optionné
275 300€ Appt. T2 48.9m2 1er
Voir
Optionné
275 300€ Appt. T2 47.98m2 2ème
DO NOT CLICK