Prix
421 400€  (TVA 20%)
370 481€  (TVA 5.5%)
Type
Appt. au 0-RDC
Pièces
T4
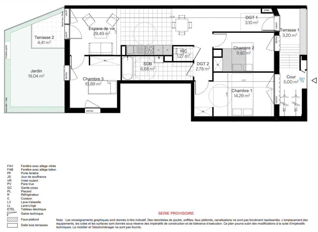
Surface
78.58 m²
Le bon plan
Exposition
-
Ville
Aubervilliers (93300)
Livraison
4ème trimestre 2027
Informations
01 81 80 39 10

Présentation du programme "Stand Up"

[FRAIS DE NOTAIRE OFFERTS*] NOUVEAU AU FORT D'AUBERVILLIERS !
Découvrez notre nouvelle résidence à AUBERVILLIERS (93) composée d'appartements du studio au 5 pièces aux prestations soignées. Vous profitez d'une adresse d'exception proche du métro, des établissements scolaires et des commerces. Grâce au statut LMNP (Loueur en Meublé Non Professionnel), bénéficiez d'une fiscalité avantageuse pour votre investissement, plus d'informations auprès de nos conseillers. Contactez nous pour en savoir plus : 0800 800 874 (appel gratuit). Care Promotion

Autres logements T4 du programme "Stand Up"

Disponibilité Prix Genre Pièces Surface Étage
Voir
Disponible
450 900€ Appt. T4 76.22m2 7ème
DO NOT CLICK