366 000€
Appt. au 2ème
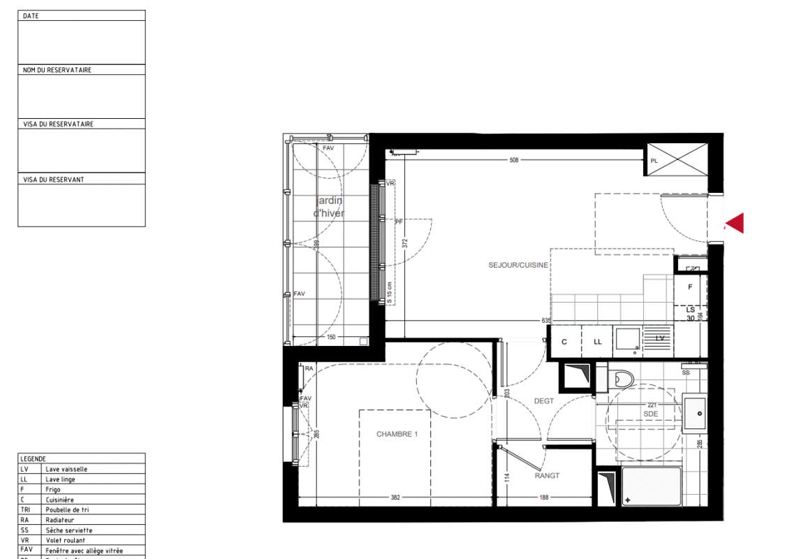
T2
47.33 m²
Ouest
Enghien-les-Bains (95880)
1er trimestre 2028
01 81 80 39 10
Présentation du programme "TELLEMENT ENGHIEN"
ENGHIEN-LES-BAINS (95) : PROCHAINEMENT DEMARRAGE DES TRAVAUX - A 250 mètres du lac et du casino, Vianova vous dévoile "TELLEMENT ENGHIEN" sa nouvelle résidence aux lignes élégantes répartie sur trois bâtiments à taille humaine. Dans cet environnement prisé et de qualité, vous profiterez d’appartements aux prestations soignées, du studio aux 5 pièces prolongés par des balcons, des loggias, des terrasses, des jardins et pour quelques privilégiés de terrasses plein ciel. Votre quotidien sera facilité par la proximité des commerces du centre-ville, des services et des équipements scolaires et sportifs. Vous pourrez également flâner aux grés de vos envies sur les berges du Lac et profiter ainsi de cet environnement remarquable. Située à 13 minutes à pied de la résidence, la Gare d’Enghien-Les-Bains (Transilien H) vous permettra de rejoindre la Gare du Nord en 16 minutes. De nombreuses lignes de bus complètent la desserte. Vous profiterez pour l’acquisition de votre résidence principale du Prêt à Taux Zéro.
Autres logements T2 du programme "TELLEMENT ENGHIEN"
| Disponibilité | Prix | No | Genre | Pièces | Surface | Étage | Disponibilité | Prix | ||
|---|---|---|---|---|---|---|---|---|---|---|
| Voir | Disponible | 332 000€ | LB01 | Appt. | T2 | 44.23m2 | 0-RDC | Disponible | 332 000€ | Voir |
| Voir | Disponible | 342 000€ | LD04 | Appt. | T2 | 45.17m2 | 0-RDC | Disponible | 342 000€ | Voir |
| Voir | Disponible | 389 000€ | LB02 | Appt. | T2 | 51.6m2 | 0-RDC | Disponible | 389 000€ | Voir |