Prix
670 242€  (TVA 20%)
589 254€  (TVA 5.5%)
Type
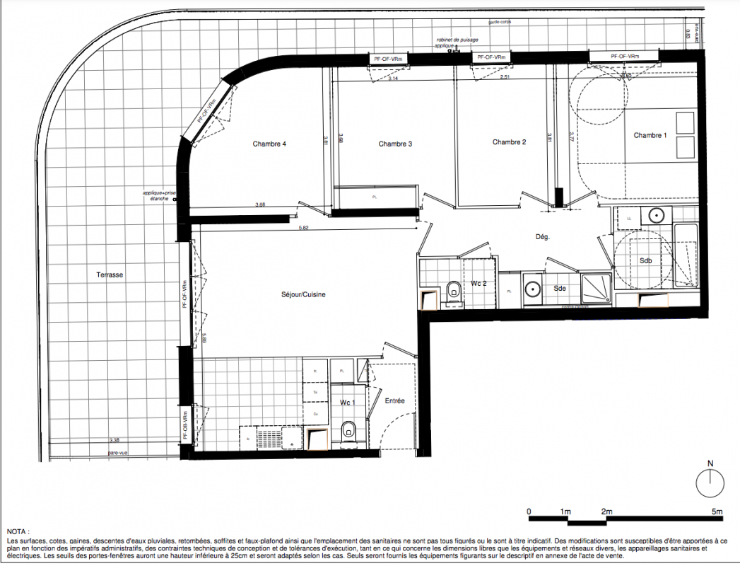
Appt. au 0-RDC
Pièces
T5
Surface
96.4 m²
Exposition
-
Ville
L'Haÿ-les-Roses (94240)
Livraison
1er trimestre 2027
Informations
01 81 80 39 10

Présentation du programme "HAUTREMENT"

 Le programme immobilier HAUTREMENT propose des appartements neufs du studio au 5 pièces duplex avec balcons, loggias, terrasses plein ciel pour certains et tous les atouts d’une haute qualité de vie.À 5 km* de Paris, la résidence est desservie par le bus V2, le tramway T7, le métro L7 et les futures lignes 14 et 15. La piste cyclable ou l'A6 permettent de rejoindre Paris en quelques minutes. 

Autres logements T5 du programme "HAUTREMENT"

Disponibilité Prix Genre Pièces Surface Étage
Voir
Disponible
710 435€ Appt. T5 104.7m2 0-RDC
DO NOT CLICK