274 900€
Appt. au 2ème
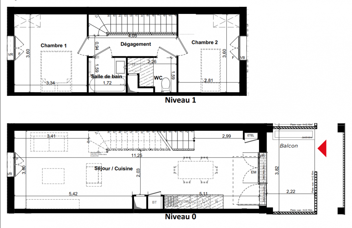
T3
68.72 m²
-
Gargenville (78440)
1er trimestre 2028
01 81 80 39 10
Présentation du programme "LES SARMENTS"
FRAIS DE NOTAIRE OFFERTS* « LES SARMENTS » : Le bien chez soi ! Un projet au confort durable qui se distingue par son mode constructif innovant : une construction modulaire en bois naturel qui intègre la technologie Vestack. En copromotion avec ce spécialiste de la construction hors-site et bas-carbone. Idéalement situé, le projet est au coeur d'un quartier résidentiel et il est à proximité immédiate de la gare (5 min à pied). Il se compose d'appartements allant du 2 au 4 pièces ainsi que des maisons de 4 et 5 pièces. « LES SARMENTS » a de nombreux atouts majeurs comme des logements traversants Est-Ouest, un coeur d'îlot végétalisé et la garantie des labellisations RE2020 avec l'atteinte du seuil 2028 (supérieur au seuil réglementaire 2025), Label biodivercity, NF Habitat et Biosourcé de niveau 3. Ce projet se distingue par l'orientation des bâtiments qui maximise l'ensoleillement et dégage des vues lointaines. Votre quotidien sera idyllique !
Contactez-nous dès à présent pour en savoir plus ! * Conditions détaillées en espace de vente.
Autres logements T3 du programme "LES SARMENTS"
| Disponibilité | Prix | No | Genre | Pièces | Surface | Étage | Disponibilité | Prix | ||
|---|---|---|---|---|---|---|---|---|---|---|
| Voir | Disponible | 273 900€ | B23 duplex | Appt. | T3 | 67.61m2 | 2ème | Disponible | 273 900€ | Voir |
| Voir | Disponible | 293 900€ | B28 duplex | Appt. | T3 | 67.82m2 | 2ème | Disponible | 293 900€ | Voir |
| Voir | Disponible | 299 900€ | A28 duplex | Appt. | T3 | 67.82m2 | 2ème | Disponible | 299 900€ | Voir |
| Voir | Disponible | 299 500€ | A23 duplex | Appt. | T3 | 67.84m2 | 2ème | Disponible | 299 500€ | Voir |
| Voir | Disponible | 274 900€ | B26 duplex | Appt. | T3 | 68.72m2 | 2ème | Disponible | 274 900€ | Voir |
| Voir | Disponible | 279 900€ | A24 duplex | Appt. | T3 | 68.72m2 | 2ème | Disponible | 279 900€ | Voir |
| Voir | Disponible | 279 900€ | A25 duplex | Appt. | T3 | 68.72m2 | 2ème | Disponible | 279 900€ | Voir |
| Voir | Disponible | 274 900€ | B27 duplex | Appt. | T3 | 68.72m2 | 2ème | Disponible | 274 900€ | Voir |
| Voir | Disponible | 274 900€ | B25 duplex | Appt. | T3 | 68.72m2 | 2ème | Disponible | 274 900€ | Voir |
| Voir | Disponible | 279 900€ | A27 duplex | Appt. | T3 | 68.72m2 | 2ème | Disponible | 279 900€ | Voir |
| Voir | Disponible | 279 900€ | A26 duplex | Appt. | T3 | 68.72m2 | 2ème | Disponible | 279 900€ | Voir |