Prix
244 000€
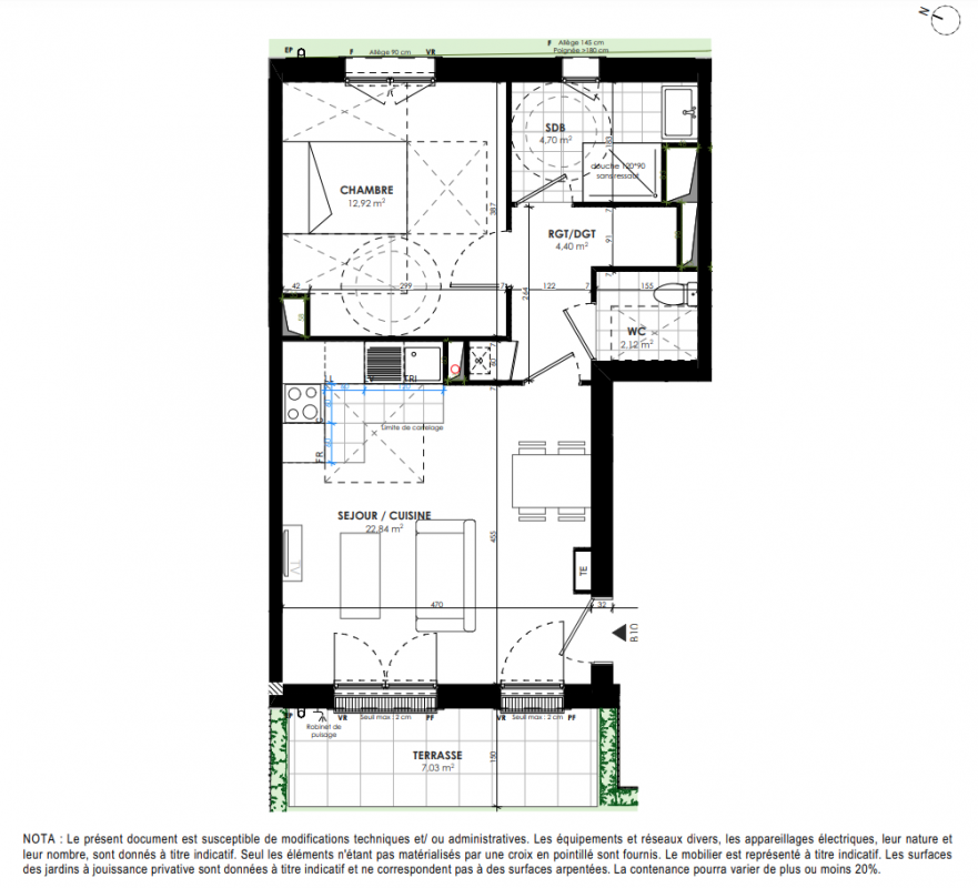
Type
Appt. au 0-RDC
Pièces
T2
Surface
47.25 m²
Exposition
-
Ville
Triel-sur-Seine (78510)
Livraison
1er trimestre 2027
Informations
01 81 80 39 10

Présentation du programme "Le Clos Gallieni - TRIEL SUR SEINE"

Pour tous renseignements : Marie Hélène Le Goff : mhlegoff@nacarat.com - 06.46.08.58.48

**COMMISSION 6% HT**

PROFITEZ DES FRAIS DE NOTAIRE OFFERTS*! Dans la ville très recherchée de Triel-sur-Seine, Le Clos Gallieni est situé à quelques minutes à pied du centre-ville, des commerces, des bords de Seine et de la gare ligne J desservant Paris-Saint-Lazare en 40 minutes. Découvrez les appartements 2 pièces ainsi que les appartements duplex 3 ou 4 pièces avec entrée indépendante. Chacun des logements neufs profite d'un jardin ou balcon ainsi que d'une à deux places de parking.

Autres logements T2 du programme "Le Clos Gallieni - TRIEL SUR SEINE"

Disponibilité Prix Genre Pièces Surface Étage
Voir
Disponible
249 000€ Appt. T2 47.25m2 0-RDC
DO NOT CLICK