547 800€
Maison au 0-RDC
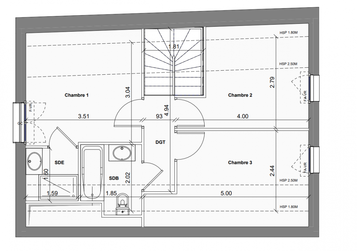
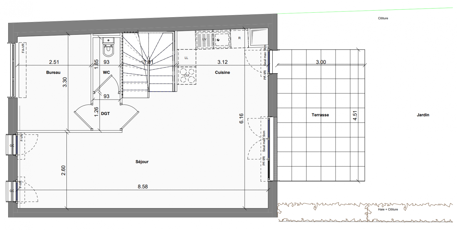
T5
116.6 m²
Est
Vélizy-Villacoublay (78140)
4ème trimestre 2027
01 81 80 39 10
Présentation du programme "Programme neuf Vélizy-Villacoublay (78140)"
NOUVEAU : Découvrez notre résidence à NEAUPHLE-LE-CHATEAUDominant la très chic campagne yvelinoise, nous vous proposons une nouvelle adresse de qualité, située dans le cœur de Neauphle-le-Château, face à l’église du village. Véritable témoin de l’histoire locale, cette charmante commune séduit par son ambiance paisible et son cadre de vie privilégié. À seulement 20 km de Versailles et à 15 minutes de Plaisir, Neauphle-le-Château conjugue harmonieusement patrimoine, nature et qualité de vie. Ses ruelles pittoresques, son marché de village, ses commerces de proximité et son école maternelle et primaire publique en font un lieu prisé des familles en quête d’un cadre de vie paisible. Idéale pour les actifs, la gare de Villiers-Neauphle-Pontchartrain, accessible en quelques minutes en voiture ou en bus, permet de rejoindre la gare de Paris-Montparnasse en seulement 33 minutes. Pour les automobilistes, les accès routiers sont optimisés avec la N12, qui mène directement à l’A12 et à l’A13, ou encore l’A86, permettant de rejoindre Paris et les principales villes de la région. Ce nouveau cœur de village se compose d’appartements allant du 2 au 4 pièces ainsi que de maisons de 4 et 5 pièces, idéales pour les familles en quête d’espace et de confort. Certains appartements bénéficient de vues dégagées sur la plaine, offrant une luminosité optimale et une ambiance sereine. Les matériaux de qualité, biosourcés, la conception moderne alliée à une architecture soignée et la fonctionnalité de chaque bien assurent un cadre de vie agréable et contemporain. Des places de parking en sous-sol sont attribuées à tous les logements. Bien plus qu’une simple adresse, c’est un véritable lieu de vie où chaque instant prend une saveur particulière. Entre l’authenticité de son centre-bourg, ses espaces verts et son accès direct à Paris, cette nouvelle adresse résidentielle représente une occasion rare de s’installer dans un environnement privilégié, tout en restant connecté aux essentiels et à toutes les grandes enseignes du parc commercial de Plaisir. Contactez vite un de nos conseillers pour choisir votre maison ou votre appartement neuf à Neauphle-le-Château !



