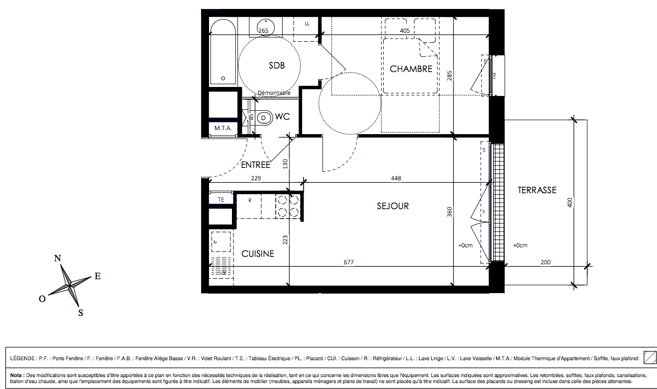
179 000€
Appt. au 0-RDC
T2
41.94 m²
Est
Barneville-Carteret (50270)
1er trimestre 2027
01 81 80 39 10
Présentation du programme "Les Terrasses du Cap"
À 5 min* des plages, une résidence balnéaire pleine d’allure
Pour investir dans le Cotentin, optez pour une adresse bénéficiant d’une solide notoriété. Ville centre de la Côte des Isles, Barneville-Carteret associe les commodités d’une commune à taille humaine à l’agrément d’une charmante station balnéaire. Durant la période estivale, sa population de 2200 habitants croît jusqu’à 12 000 résidents de tous horizons. Son secret ? Elle propose des liaisons maritimes vers les iles anglo-normandes de Jersey et Guernesey, lui assurant une clientèle nombreuse et cosmopolite. Prisée pour ses activités nautiques, son port de plaisance et ses animations festives, Barneville-Carteret offre également une belle qualité de vie tout au long de l’année et se prête aussi bien à vos projets en location classique ou saisonnière. En cœur de ville, à deux pas de toutes les commodités, votre appartement neuf avec un agréable extérieur privatif constitue un placement pérenne.

