Prix
164 929€  (TVA 20%)
145 000€  (TVA 5.5%)
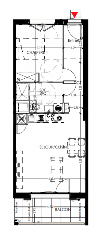
Type
Appt. au 2ème
Pièces
T2
Surface
49.08 m²
Exposition
-
Ville
Biganos (33380)
Livraison
4ème trimestre 2026
Informations
01 81 80 39 10

Présentation du programme " Le patio des lacs "

Venez découvrir notre programme immobilier qui compte plusieurs bâtiments en R+2 et R+3 répartissant des logements et un commerce en rez de chaussée. Le patio des lacs comprend 38 logements répartis dans la résidence, tous équipés d'une place de stationnement. L'emplacement est idéal, au cœur des commerces et des équipements publics, mais également de la gare de Biganos pour des déplacements directs vers Bordeaux, les Landes, le Pays Basque, Arcachon…
Du T2 au T4, nos logements seront traversants et disposeront tous de balcons ou terrasses. La lumière et le confort sont ainsi optimisés. Un îlot de verdure au cœur de la résidence complète parfaitement la résidence. Ce programme de grande qualité architecturale bénéficie aussi de la réglementation RE 2020, chauffe eau thermodynamique et chauffage pompe à chaleur. Vous rêvez de devenir propriétaire sur le Bassin ? N'attendez plus et renseignez-vous vite auprès de nos conseillers.

Autres logements T2 du programme " Le patio des lacs "

Pas de logements disponibles
DO NOT CLICK