57 900€
403 200€
- €
Type
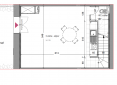
Appt. au 0-RDC
Pièces
T3
Surface
53.68 m²
Exposition
-
Ville
Mérignac (33700)
Livraison
4ème trimestre 2027
Informations
01 81 80 39 10

Présentation du programme "CHATEAU BON AIR"

Mérignac est une commune de la banlieue Ouest bordelaise. Intégrée à l’aire urbaine de Bordeaux, elle profite de son attraction économique et touristique. Plusieurs grandes entreprises se sont implantées sur ce territoire attractif : Thales, Oxbow, Dassault, Cultura ou encore Cofinoga. Toutes sont séduites par le dynamisme et les perspectives de croissance de la deuxième ville de Gironde.




Idéalement situé à seulement 10 min de Bordeaux et proche de nombreuses commodités et d’écoles, le Château Bon Air se dresse à l’entrée du bois de Burck. Cette adresse verra ses richesses architecturales préservées. Le Château Bon Air accueillera 15 logements pour la majorité traversants. Sa variété de typologies offrira une réponse complète à la demande locative.

Autres logements T3 du programme "CHATEAU BON AIR"

Disponibilité Prix Genre Pièces Surface Étage
Voir
Disponible
595 900€ Appt. T3 76.65m2 0-RDC
Voir
Disponible
452 100€ Appt. T3 55.32m2 0-RDC
Voir
Disponible
457 100€ Appt. T3 53.11m2 0-RDC
DO NOT CLICK