Prix
577 200€
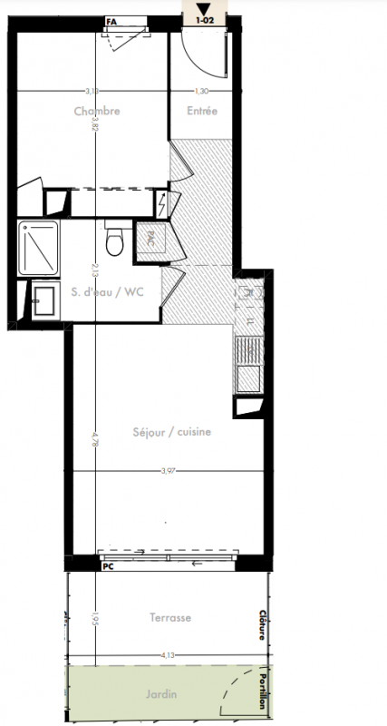
Type
Appt. au 0-RDC
Pièces
T4
Surface
87.61 m²
Exposition
-
Ville
Toulouse (31000)
Livraison
2ème trimestre 2026
Informations
01 81 80 39 10

Présentation du programme "Programme neuf Toulouse (31000)"

DEVENEZ PROPRIÉTAIRE DANS LE CENTRE-VILLE DE TOULOUSE !Les travaux démarrent ! Ne manquez pas cette opportunité unique de devenir propriétaire dans une résidence d’exception, située au cœur d’un quartier en pleine évolution, à deux pas de l’hypercentre de Toulouse. Notre nouvelle résidence propose 16 appartements neufs, déclinés du 2 au 5 pièces. L’architecture revisite les codes typiquement toulousains et s’intègre parfaitement au tissu urbain existant. Grâce à un agencement en cascade, tous les logements bénéficient de beaux espaces extérieurs (balcons, vastes terrasses ou jardins privatifs) et offrent, dès le rez-de-chaussée, des vues dégagées vers les toits de Toulouse. Commerces, services, écoles, collèges ou lycées à proximité immédiate de la résidence complètent ce cadre de vie idéal. Contactez-nous dès maintenant, un conseiller commercial vous accompagnera dans votre projet immobilier.

Autres logements T4 du programme "Programme neuf Toulouse (31000)"

Pas de logements disponibles
DO NOT CLICK