Prix
236 500€
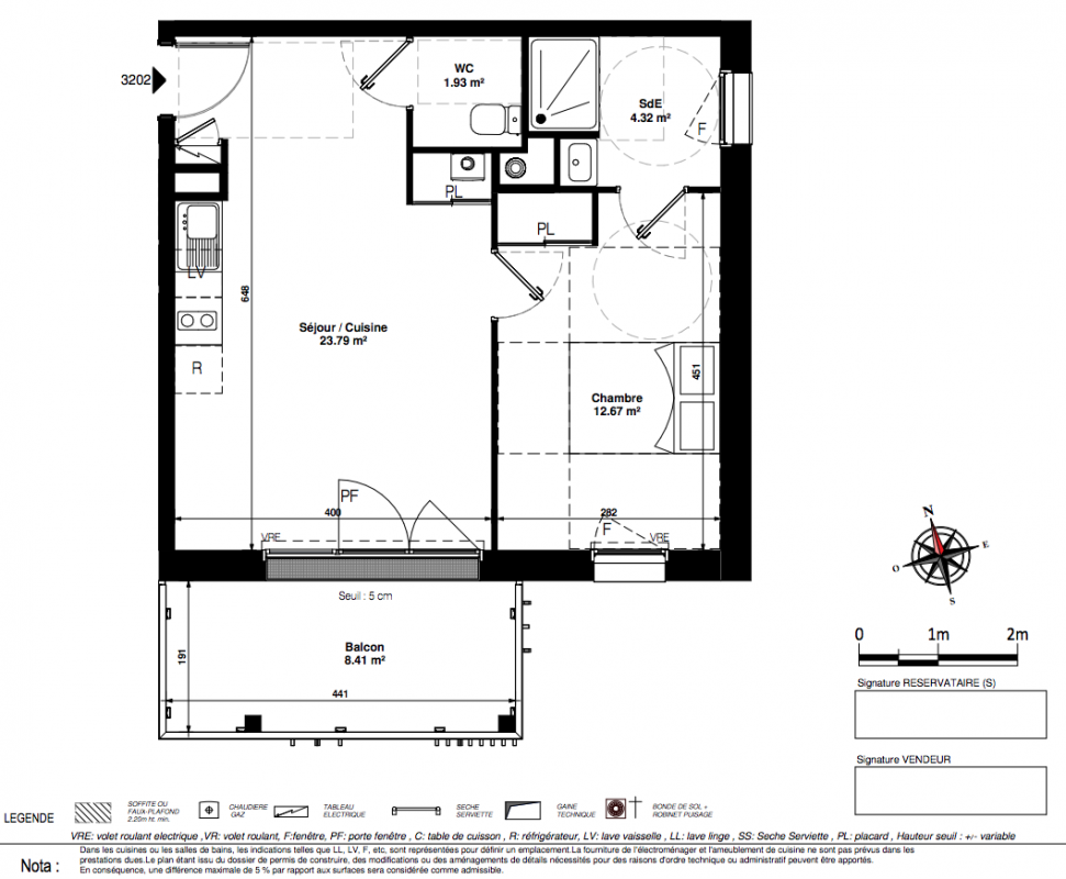
Type
Appt. au 2ème
Pièces
T2
Surface
42 m²
Exposition
Sud-Est
Ville
Pornichet (44380)
Livraison
1er trimestre 2027
Informations
01 81 80 39 10

Présentation du programme "CARAVELLE"

Autres logements T2 du programme "CARAVELLE"

Disponibilité Prix Genre Pièces Surface Étage
Voir
Disponible
228 250€ Appt. T2 42m2 1er
Voir
Disponible
237 416€ Appt. T2 42m2 2ème
Voir
Disponible
248 416€ Appt. T2 42m2 3ème
Voir
Disponible
248 416€ Appt. T2 42m2 3ème
Voir
Disponible
239 250€ Appt. T2 39m2 3ème
Voir
Disponible
251 166€ Appt. T2 42m2 3ème
Voir
Disponible
263 083€ Appt. T2 44m2 4ème
DO NOT CLICK